تفاصيل عامة
- تحديث يوم:
- أغسطس 23, 2021
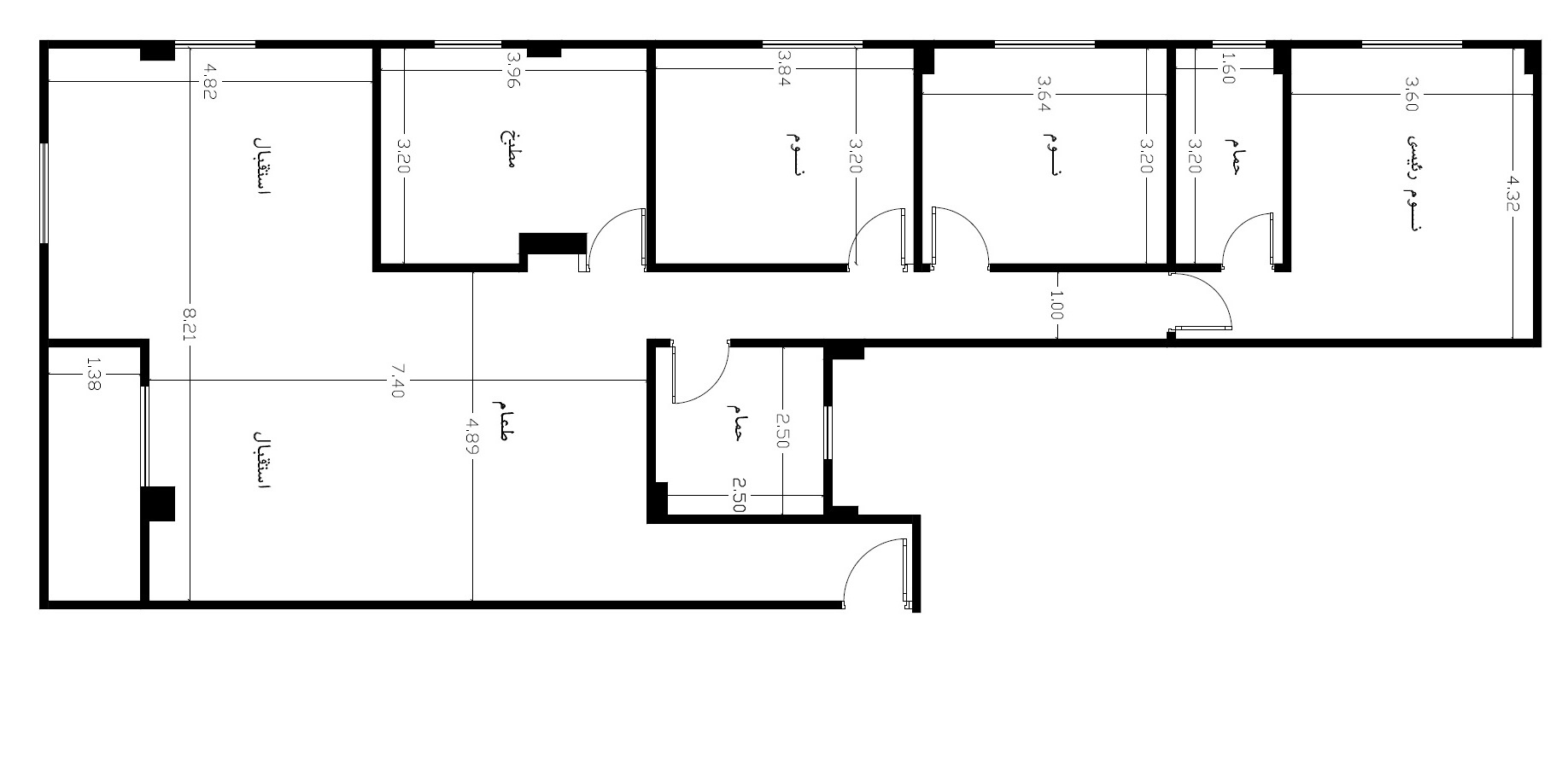
- 3 نوم
- 3 حمام
- 1 جراج
- 197 متر2
- سنة البناء: 2020
الوصف
شقة للبيع في التجمع الخامس 197م استلام فوري
شقة للبيع في التجمع الخامس 197م استلام فوري في الاندلس الجديدة،حيث تتكون الشقة من 3 غرف نوم. عدد 2 حمام. مطبخ كبير. 3 ريسيبشن. تراس على الواجهة الرئيسية. كما تتمتع الشقة برؤية مفتوحة على اوسع شارع بالاندلس. حيث انه شارع بعرض 40 متر، كما ترى كمبوند القطامية ديونز. وبالاضافة الى ذلك فان المشروع على بعد مسافة 300 م من شارع التسعين. كذلك مسافة 100 م من كمبوند القطامية ديونز
شقة 197م – الاندلس الجديدة استلام فوري تقسيط 3 سنوات
الشقة تم الانتهاء من جميع الانشاءات بها. كما انها تسليم فوري نصف تشطيب (محارة وحلوق). كما يمكن ان تقوم الشركة بالتشطيب لكم وتسليمها على المفتاح. اما نظام السداد فهو بالتقسيط بدون فوائد على فترة 3 سنوات من المالك مباشرة وهو شركة سيفيك ريزيدنس للتطوير العقاري. كما تعرض الشركة الكثير من العروض لشقق للبيع في التجمع الخامس
شقة للبيع بالتجمع الخامس بحي الاندلس الجديدة
منطقة الاندلس الجديدة تقع على شارع التسعين الجنوبي بعد الجامعة الامريكية بحوالي 3 كم وتقع مباشرة امام كبموند ميفيد اعمار كما انها تقع مباشرة بعد كمبوند القطامية ديونز. تتميز منطقة الاندلس الجديدة بموقعها وسط اكبر كمبوندات التجمع الخامس مما يعطي بريستيج خاص للمنطقة. كما ان المنطقة مكتملة المرافق ويمكن السكن بها . بمجرد الانتهاء من التشطيبات. ويجدر الاشارة الى ان المنطقة حديثة لذلك نسبة السكن بها ضئيلة حاليا ولكن مع فترة 6 شهور وبانتهاء توصيلات الكهرباء سوف تزداد نسبة السكن بشكل كبير.
شقة للبيع بالتجمع الخامس من المالك مباشرة
من شركة سيفيك ريزيدنس للتطوير العقاري حيث يمكن لكم التقسيط بدون فوائد كما يمكن الاطلاع على عقارات اخرى وشقق للبيع في التجمع الخامس من الشركة. كما يتوفر بالشركة العديد من شقق للبيع في بيت الوطن بالقرب من العاصمة الادارية الجديدة بانظمة سداد متنوعة ومساحات مختلفة تنتاسب الجميع.








