تفاصيل عامة
- تحديث يوم:
- أغسطس 23, 2021
- 3 نوم
- 3 حمام
- 164 متر2
الوصف
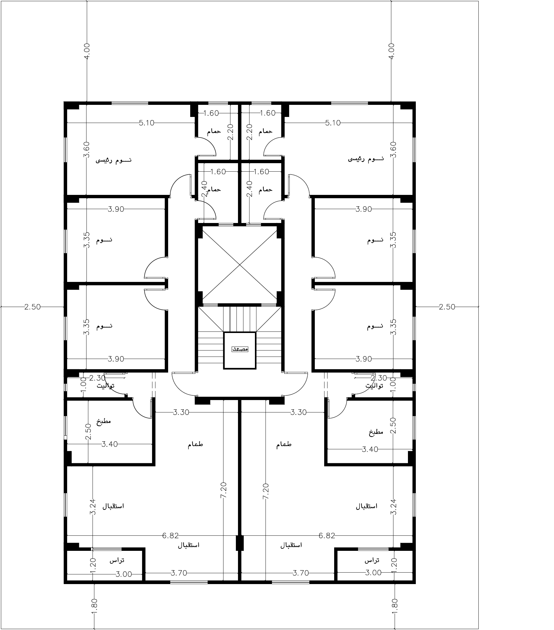
شقة 164م النرجس الجديدة التجمع الخامس . تقع في منطقه النرجس القاهرة الجديدة .حيث ان المشروع في موقع استراتيجي واستثماري بنسبة 100% . كما ان المشروع يقع بالقرب من طريق القاهرة العين السخنة.
شقة للبيع في النرجس الجديدة
تعتبر شقة 164م النرجس الجديدة التجمع الخامس من ضمن شقق للبيع في النرجس الجديدة .
يعتبر حي النرجس الجديدة من الأحياء المميزة وذلك لقربه من أحياء التجمع الخامس . وتعتبر من اكثر المناطق المتواجدة وسط أكثر الأحياء المكتملة وذلك لأنها بالقرب من (الجامعة الألمانية – منطقة فيلات الأحياء – كمبوند الدبلوماسيين – غرب الجولف) والذي يميز هذه المناطق أنها مكتملة السكن و الخدمات . كما ان المشروع يقع بمنطقة شديدة التميز بمدينة القاهرة الجديدة . حيث انه امتداد سكني لمنطقة النرجس حيث يحدها غربا الجامعة الألمانية ومناطق ترفيهية وسكنية مميزة، كما تقع النرجس الجديدة بالقرب من طريق القاهرة العين السخنة.
شقة 164 م للبيع في النرجس الجديدة
شقة للبيع في التجمع الخامس
تعتبر شقة للبيع 164م التجمع الخامس من ضمن شقق للبيع في التجمع الخامس . كما ان الشقه في موقع استراتيجي بالنرجس الجديدة والمشروع في منطقه C فيو حديقه ومسافه 3 دقائق من مسجد فاطمه الشربتلي .
شقة للبيع 164م النرجس الجديدة
حيث ان الشقة تتكون من 3 غرفة نوم , 3 ريسيبشن و 3 حمام , كما ان الموقع بالنرجس الجديدة علبي بعد 3 دقائق من مسجد فاطمة الشربتلي ومسافة 100 م من محور جمال عبد الناصر .








